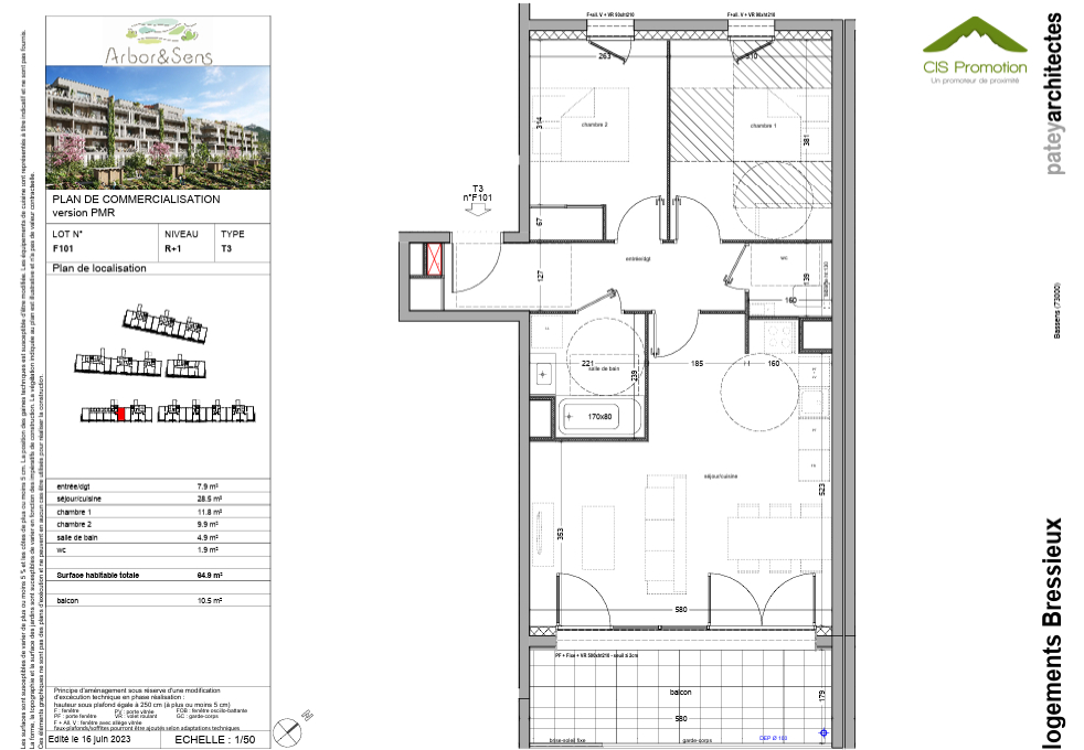
Vente Appartement T3 64m² BASSENS
BASSENS T3 Neuf 65m²
- 64 M2
- 3 pièces
- 1 salle d’eau
- Chauffagedeville / CollectifComptageIndividuel

Appartement T3 64m² BASSENS
A Bassens, sur les premières pentes des Monts, dans un emplacement privilégié par le calme et la vue panoramique qu’il offre sur les montagnes de la Cluse de Chambéry, cet appartement de type 3 de 65m², avec une terrasse de 10.5m², vous permet de profiter des avantages cumulés du neuf (frais de notaire réduits, performance thermique, garanties, confort, aménagement, absence de travaux), et de l’ancien (disponibilité immédiate) dans une résidence en cours de livraison.
L’appartement est situé au 1er étage, avec une très bonne exposition Sud-Est.
Les prestations sont flatteuses. Carrelage 60*60, volets roulants électriques, WC suspendu, peinture lisse murs et plafonds, porte d’entrée iso-blindée, architecture extérieure et intérieure contemporaine, vidéophone couleur.
En annexe, inclus dans le prix, un garage fermé en sous-sol sécurisé, une cave et un jardin privatif.
Tous renseignements et visite sur demande.
Le chauffage et l’eau chaude sanitaire sont inclus dans les charges de copropriété.
Copropriété de 400 lots – dont 150 lots habitation.
Charges annuelles : 1500 euros.
- Informations complémentaires
- Fiche signalétique
- Référence : 59450553
- Surface Carrez : m²
- Surface Habitable : 64.9 m²
- Copropriété : oui
- Nombres de lots : 400
- Pas de procédure en cours
- Ascenseur : oui
- Chauffage : Chauffagedeville
- Mode chauffage : CollectifComptageIndividuel
- PMR : oui
- Nombre Toilette : 1
Ce bien vous intéresse ?
Laissez-nous vos coordonnées pour être appelé par un conseiller
nous rencontrer
1513 avenue de Chambéry
73190 Challes-les-Eaux
Nous appeler
DELION Gilles
Négociateur



