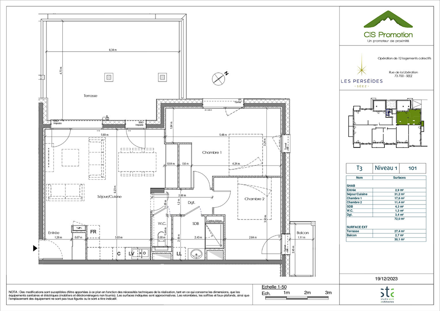
Vente Appartement T3 70m² SEEZ
Appartement Seez 3 pièce(s) 70.8 m2
- 70 M2
- 3 pièces
- 1 salle de bain
- Séjour 29.3 M2
- PompeChaleur / Individuel

Appartement T3 70m² SEEZ
Sommet de résidence, T3 angle SUD emplacement idéal, une terrasse et un balcon. Les PERSEIDES 12 logements dans un quartier résidentiel. Normes de performances thermiques acoustiques et environnementales 2020. Pompe à chaleur individuelle Chauffage au sol, Brises soleil orientables motorisés. Jardins potagers, Appartement livré sans cuisine. une cave et un double Garage en sus Plans et notices techniques détaillées disponibles dans notre agence de Bourg Saint Maurice
Copropriété de 33 lots – dont 12 lots habitation.
Charges annuelles : 1 euros.
- Informations complémentaires
- Fiche signalétique
- Référence : 60433879
- Surface Carrez : 70.8 m²
- Surface Habitable : 70.8 m²
- Copropriété : oui
- Nombres de lots : 33
- Pas de procédure en cours
- Ascenseur : oui
- Chauffage : PompeChaleur
- Mode chauffage : Individuel
- PMR : oui
- Nombre Toilette : 1
Ce bien vous intéresse ?
Laissez-nous vos coordonnées pour être appelé par un conseiller
nous rencontrer
189 avenue du Maréchal Leclerc
73700 Bourg-Saint-Maurice
Nous appeler
BATUT Pascale



