Vente Appartement T5 100m² SAINT ALBAN LEYSSE
Appartement Saint Alban Leysse 5 pièces 100.53 m2
- 100 M2
- 5 pièces

Appartement T5 100m² SAINT ALBAN LEYSSE
La campagne à la ville.
Une future adresse de prestige pour cette résidence à St Alban Leysse, qui vous propose 75 logements répartis sur 7 petits bâtiments, dans une ambiance intimiste.
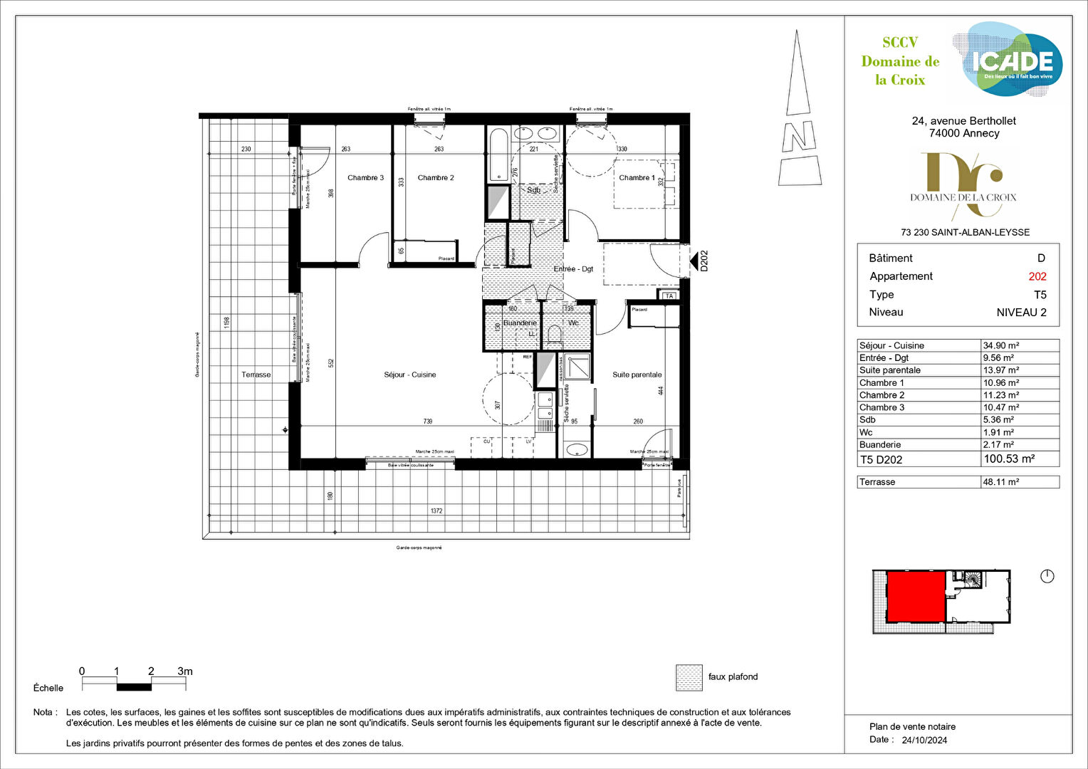
Ce T5 situé au 2ème étage offre 100.53 m² et une terrasse de 48.11 m² , représentant une vraie pièce supplémentaire avec les beaux jours.
L’appartement propose un séjour cuisine de 34.90 m², 4 chambres dont une suite parentale, un placard dans l’entrée, une salle de bain, un WC indépendant et une buanderie.
En annexe, 2 garages fermés en sous-sol, ainsi qu’une cave.
Copropriété de 75 lots – dont 75 lots habitation.
Charges annuelles : 806 euros.
- Informations complémentaires
- Fiche signalétique
- Référence : 60199516
- Surface Carrez : 100.53 m²
- Surface Habitable : 100.53 m²
- Copropriété : oui
- Nombres de lots : 75
- Pas de procédure en cours
- Ascenseur : non
- PMR : non
Ce bien vous intéresse ?
Laissez-nous vos coordonnées pour être appelé par un conseiller
nous rencontrer
1513 avenue de Chambéry
73190 Challes-les-Eaux
Nous appeler
BLANCHIN Cylia
Négociateur



