Vente Appartement T3 61m² SAINT ALBAN LEYSSE
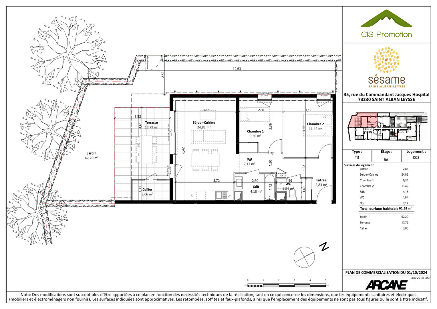
T3 - REZ DE JARDIN - 61.62 m2
- 61 M2
- 3 pièces
- 1 salle de bain

Appartement T3 61m² SAINT ALBAN LEYSSE
Au coeur du centre-bourg de la commune de Saint-Alban-Leysse, SESAME vous propose un cadre de vie dynamique et privilégié alliant proximité des commerces et de toutes les commodités… aux pieds du bâtiment !
Avec une vue dégagée sur les massifs alentours, SESAME se démarque par la douceur de sa façade aux tons miel et à la dominante bois, son aspect résolument nature grâce à son mur végétalisé ainsi que par ses toitures atypiques et ingénieuses.
Situé en rez-de-jardin, ce bel appartement T3 de 61,62 m² habitables offre des espaces bien pensés et agréables à vivre.
Il se compose d’une entrée, d’un séjour avec cuisine ouverte de 24,82 m², lumineux et fonctionnel, de deux chambres de 9,36 m² et 11,42 m², d’une salle de bains de 4,18 m², d’un WC indépendant.
L’atout majeur de ce logement : ses espaces extérieurs généreux, avec une terrasse de 17,79 m² prolongée par un jardin privatif d’environ 62 m², idéal pour profiter des beaux jours.
Un cellier vient compléter l’espace intérieur pour davantage de rangements.
Le bien bénéficie également d’un garage de 16.4m² et d’un local vélo, apportant un confort supplémentaire au quotidien.
Copropriété de 84 lots.
- Informations complémentaires
- Fiche signalétique
- Référence : 59872820
- Surface Carrez : m²
- Surface Habitable : 61.62 m²
- Copropriété : oui
- Nombres de lots : 84
- Pas de procédure en cours
- Ascenseur : non
- PMR : non
- Nombre Toilette : 1
Ce bien vous intéresse ?
Laissez-nous vos coordonnées pour être appelé par un conseiller
nous rencontrer
1513 avenue de Chambéry
73190 Challes-les-Eaux
Nous appeler
BLANCHIN Cylia
Négociateur



